About this property

ON BEHALF OF THE RECEIVERS

A mixed use investment opportunity producing £10,400 per annum.

A three storey plus basement double fronted middle terraced mixed use property comprising of ground retail unit, we believe the first and second floors comprise of 8 x self contained studios. The property benefits from double glazing and roller shutters.

The whole building currently let by way of a 5 year lease from May 2021 producing a rental income of £10,400 per annum. Please note the receivers do not have a copy of the lease and we can not confirm the accommodation to the upper two floors.

Listed By

Sutton Kersh - Auctions
2 Cotton Street,
Liverpool,
L3 7DY

t. 0151 207 6315
f. 0151 207 6316
auctions@suttonkersh.co.uk

Full Description

Tenure - Leasehold


Situated

Fronting Walton Road one of the main arteries into Liverpool City Centre in a popular and well established location approximately 3 miles from Liverpool City Centre.

Lower Ground Floor

Basement

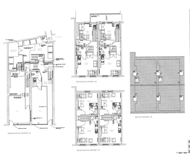
Ground Floor

Retail Unit - Reception Area, Various Rooms, Kitchenette, WC

First Floor

Believed to be four en suite studios
Studios 1, 2, 5, 6 - Open Plan Living/Kitchen/Bedrooms, Shower Room/WC

Second Floor

Believed to be four en suite studios
Studios 3, 4, 7, 8 - Open Plan Living/Kitchen/Bedrooms, Shower Room/WC

Outside

Yard to the rear.

NB

Sutton Kersh have not inspected the property internally, we can not confirm the layout or configuration of the accommodation and details have been provided by the vendor. Interested parties should reply on their own enquiries.

EPC Rating

D

Council Tax Band

Photos
Map

241-243 Walton Road, Liverpool

Arrange a Viewing / Enquire

We would love to hear from you

Simply fill in and send the form and one of our consultants will get in touch with you shortly. Please note all fields marked with * must be completed.

Your information is being collected and processed by Countrywide. All information will be processed in accordance with the General Data Protection Regulation. Full details of how we process your information can be found on our website Privacy Policy. Print copies of our privacy notice are available on request. If you need to discuss how your information is being processed, please contact us at privacy@countrywide.co.uk

Viewings

We are following Government Guidelines to allow viewings to take place on vacant lots. Where possible, we will upload 360° tours or video tours and internal pictures of lots on our website and we advise that you view these before booking a viewing. We would respectfully remind all parties that strict social distancing will be applied to viewings and facemasks must be worn. You will be allocated a strict 10-minute slot, must attend alone, and wear a facemask. We do ask for your patience, it may not always be possible to accommodate everyone, but we assure you our team is working hard to keep the property market open.

* Guide Price

An indication of the seller’s current minimum acceptable price at auction. The guide price or range of guide prices is given to assist consumers in deciding whether or not to pursue a purchase. It is usual, but not always the case, that a provisional reserve range is agreed between the seller and the auctioneer at the start of marketing. As the reserve is not fixed at this stage and can be adjusted by the seller at any time up to the day of the auction in the light of interest shown during the marketing period, a guide price is issued. This guide price can be shown in the form of a minimum and maximum price range within which an acceptable sale price (reserve) would fall, or as a single price figure within 10% of which the minimum acceptable price (reserve) would fall. A guide price is different to a reserve price (see separate definition). Both the guide price and the reserve price can be subject to change up to and including the day of the auction.

* Reserve Price

The seller’s minimum acceptable price at auction and the figure below which the auctioneer cannot sell. The reserve price is not disclosed and remains confidential between the seller and the auctioneer.

Both the guide price and the reserve price can be subject to change up to and including the day of the auction.

Buyer's Fee

A successful purchaser will also be required to pay a Buyer’s Administration Charge of 1.2% of the purchase price subject to a minimum fee of £1,800 including VAT (unless stated otherwise within the property description in the catalogue) by debit card or bank transfer.

Legal Packs

You are bidding on the basis that you have made all necessary enquiries, particularly in respect of lots the auctioneer has not inspected or had initial sight of tenancy details, and have checked the General and Special Conditions of Sale and are satisfied that you fully understand their content. Please note that some legal packs may contain additional fees (such as the requirement for the seller to pay the vendor's legal fees)

NAEA propertymark logo

ARLA propertymark logo

We are a member of the Propertymark Client Money Protection Scheme
View CMP Certificate
Conduct & Membership Rules

The Property Ombudsman logo

^M