About this property

Addendum To Printed Catalogue

This property has sold prior to auction.


A four storey plus cellar middle terrace property comprising of a ground floor retail unit together with 3 floors of accommodation above benefiting from central heating, electric roller shutters and fire alarm system. The shop has previously been used as a Beauty Salon and would be suitable for a number of uses, subject to any consents.

The upper floors could be suitable for conversion to provide a generous 4 bed self-contained flat, subject to any necessary consents.

Once converted the potential rental income being £7,200 or alternatively if let to 4 individuals at a rental income of £75ppw the potential rental income would be £15,600.

When fully let the total income would be approximately £21,000 per annum.

Listed By

Sutton Kersh - Auctions
2 Cotton Street,
Liverpool,
L3 7DY

t. 0151 207 6315
f. 0151 207 6316
auctions@suttonkersh.co.uk

Full Description

Situated

Fronting Park Road (A561) in a popular and well established location within close proximity to all local amenities and approximately 2 miles from Liverpool City Centre.

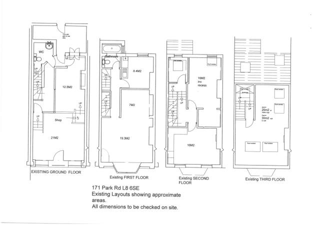
Cellar

Staircase, lighting and metres.

Ground Floor

Shop - Main Sales area, associated rear sales area and WC.

First Floor

Bathroom/WC, Kitchen and large front room.

Second Floor

2 Rear rooms and front room (currently used as kitchen)

Third Floor

1 Large Room with velux windows and scenic views to the front.

Outside

Yard to Rear with access to rear alley.

Photos
Map

171 Park Road, Toxteth, Liverpool

Arrange a Viewing / Enquire

We would love to hear from you

Simply fill in and send the form and one of our consultants will get in touch with you shortly. Please note all fields marked with * must be completed.

Your information is being collected and processed by Countrywide. All information will be processed in accordance with the General Data Protection Regulation. Full details of how we process your information can be found on our website Privacy Policy. Print copies of our privacy notice are available on request. If you need to discuss how your information is being processed, please contact us at privacy@countrywide.co.uk

Viewings

We are following Government Guidelines to allow viewings to take place on vacant lots. Where possible, we will upload 360° tours or video tours and internal pictures of lots on our website and we advise that you view these before booking a viewing. We would respectfully remind all parties that strict social distancing will be applied to viewings and facemasks must be worn. You will be allocated a strict 10-minute slot, must attend alone, and wear a facemask. We do ask for your patience, it may not always be possible to accommodate everyone, but we assure you our team is working hard to keep the property market open.

* Guide Price

An indication of the seller’s current minimum acceptable price at auction. The guide price or range of guide prices is given to assist consumers in deciding whether or not to pursue a purchase. It is usual, but not always the case, that a provisional reserve range is agreed between the seller and the auctioneer at the start of marketing. As the reserve is not fixed at this stage and can be adjusted by the seller at any time up to the day of the auction in the light of interest shown during the marketing period, a guide price is issued. This guide price can be shown in the form of a minimum and maximum price range within which an acceptable sale price (reserve) would fall, or as a single price figure within 10% of which the minimum acceptable price (reserve) would fall. A guide price is different to a reserve price (see separate definition). Both the guide price and the reserve price can be subject to change up to and including the day of the auction.

* Reserve Price

The seller’s minimum acceptable price at auction and the figure below which the auctioneer cannot sell. The reserve price is not disclosed and remains confidential between the seller and the auctioneer.

Both the guide price and the reserve price can be subject to change up to and including the day of the auction.

Buyer's Fee

A successful purchaser will also be required to pay a Buyer’s Administration Charge of 1.2% of the purchase price subject to a minimum fee of £1,800 including VAT (unless stated otherwise within the property description in the catalogue) by debit card or bank transfer.

Legal Packs

You are bidding on the basis that you have made all necessary enquiries, particularly in respect of lots the auctioneer has not inspected or had initial sight of tenancy details, and have checked the General and Special Conditions of Sale and are satisfied that you fully understand their content. Please note that some legal packs may contain additional fees (such as the requirement for the seller to pay the vendor's legal fees)

NAEA propertymark logo

ARLA propertymark logo

We are a member of the Propertymark Client Money Protection Scheme
View CMP Certificate
Conduct & Membership Rules

The Property Ombudsman logo

^M